Building Plot with Planning Permission:
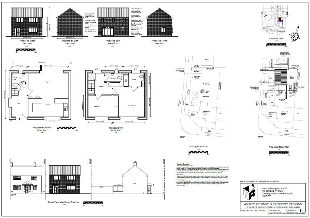
An excellent development opportunity situated within an established residential area of Corringham. This attractive building plot benefits from planning permission for a two-bedroom detached dwelling extending to approximately 1,050 sq ft, making it an ideal project for a small developer or investor.
The approved scheme offers the prospect of delivering a modern, well-proportioned home that would appeal strongly to both the sales and rental markets, ensuring broad end-user demand upon completion.
The Opportunity:
Residential building plot with planning consent granted.
Approved for a two-bedroom detached house.
Approximate internal floor area of 1,050 sq ft
Well-balanced accommodation suitable for modern living.
Strong resale and rental potential.
Location:
Bellmaine Avenue is a well-regarded residential road within Corringham, offering convenient access to local shops, schools, and everyday amenities. The area is popular with both owner-occupiers and tenants, underpinned by good transport links to surrounding towns and commuter routes.
Development & Investment Potential:
This is a straightforward and manageable development opportunity, well suited to a smaller builder or developer seeking a single-unit project with clear end value. The scale, layout, and location combine to create a finished property that should perform well in today"s market, whether retained as a buy-to-let investment or sold on completion.
Summary:
Prime infill development opportunity.
Planning agreed for a detached dwelling.
Highly marketable end product.
Ideal for sale or rental investment.
Further details, including planning documentation, are available upon request.
For further information on this property please call 01375 531622 or e-mail [email protected]



